Butzbach – Münster

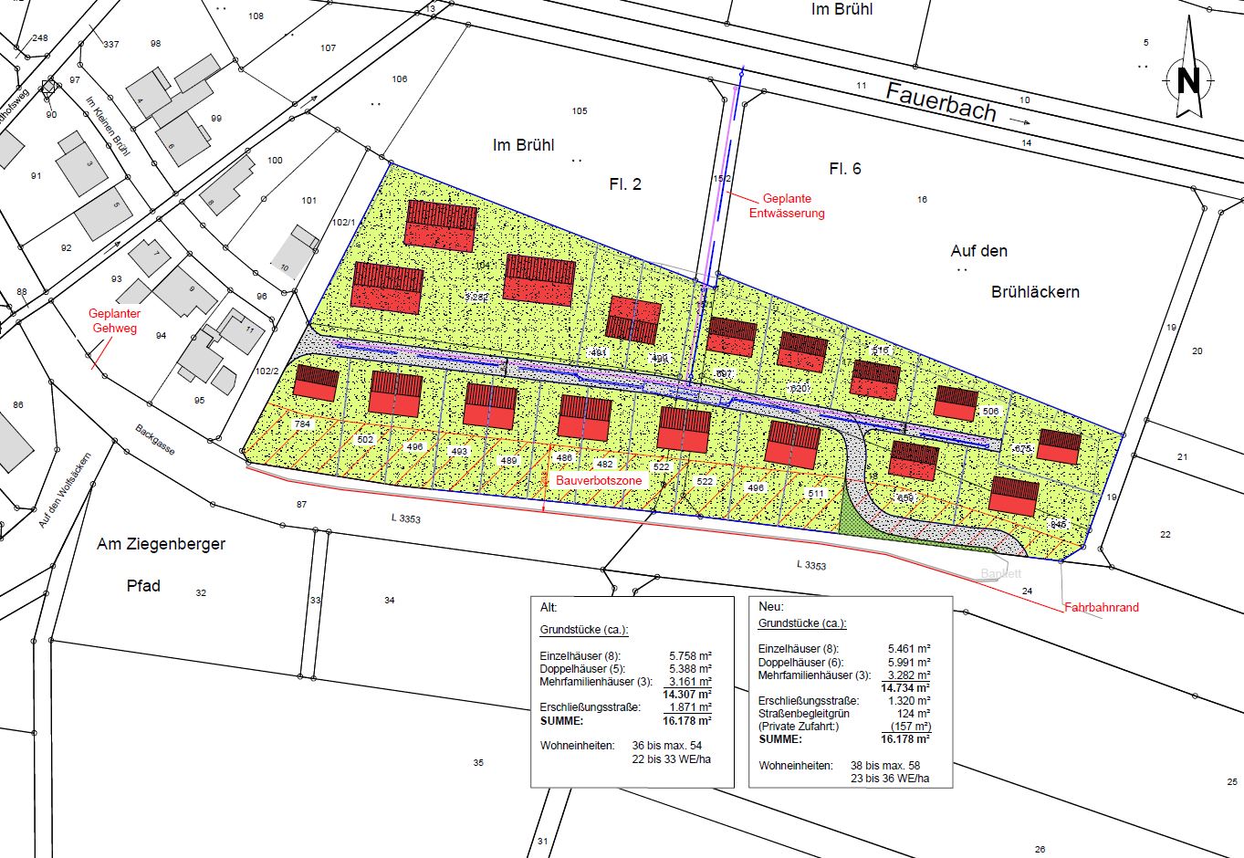
Münster liegt am Westrand der schönen Wetterau an der Grenze zum waldreichen Hochtaunus und rund fünf Kilometer südwestlich der Kernstadt Butzbach und gehört zum Naturpark Taunus. Bereits Ende 2019 hat die Immobilien-Projektentwicklung der Jaweed Unternehmensgruppe mit dem Grunderwerb des rund 16.400 m² großen Geländes des ehemaligen Betonwerkes an der Kreisstraße 15 begonnen. Aktuell ist der Rückbau im vollen Gange. Ein Rückbau eines solch speziellen Objektes bringt viele Herausforderungen mit sich. Dabei nutzt die Jaweed Unternehmensgruppe ihre branchenübergreifende Struktur. Durch die Expertise im Geschäftsfeld Baumaschinen ist es uns möglich die Rückbauarbeiten überwiegend eigenständig zu planen, durchzuführen und zu koordinieren. Darüber hinaus werden derzeit die Bebauungsmöglichkeiten geprüft und mit den maßgeblichen Behörden der Stadt Butzbach abgestimmt. Wir halten Sie auf dem laufendem.

Objektdaten

Grundstücksfläche: 16.400 m²

Leistungsbeschreibung

Rückbau, Entsorgung, Schaffung Baurecht, Projektentwicklung

Aufwertungsmaßnahmen

Wohnraumschaffung

Impressionen

  • Alle
  • Vorher
  • Nachher

Videos

Lorem ipsum dolor sit amet, at mei dolore tritani repudiandae. In his nemore temporibus consequuntur, vim ad prima vivendum consetetur.